A Hong Kong interior designer made a family-friendly home without compromising on style
Mid-century modernism, textures and clean lines dominate in a Pok Fu Lam flat designed by a maestro of minimalism
“The details are not the details; they make the design,” wrote legendary mid-century designer Charles Eames. It is a principle held dear by Yu-chang Chen, creative director of interior design studio hoo.
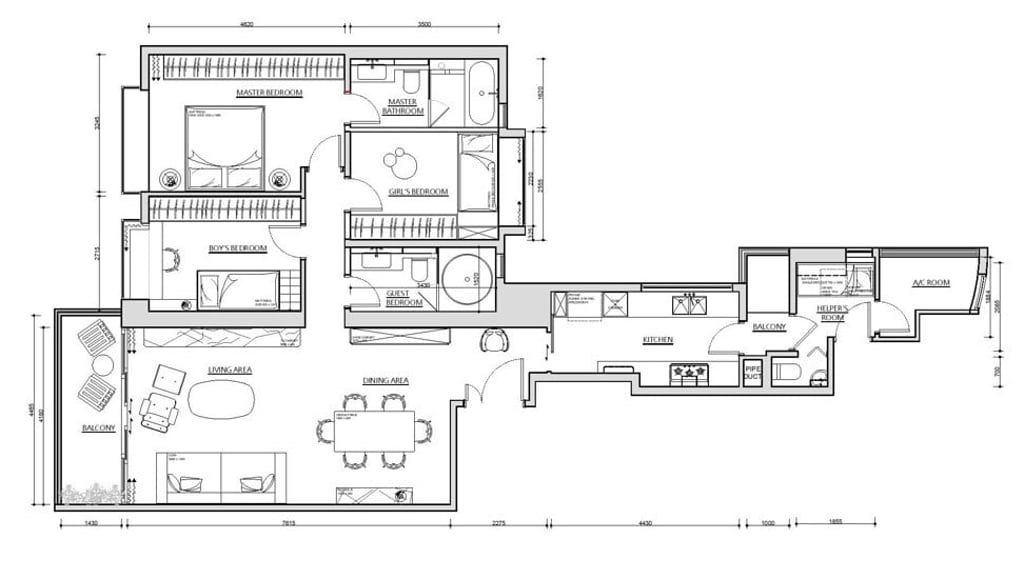
For his latest project, a 1,700 sq ft, three-bedroom flat in Pok Fu Lam, he combined his clients’ mid-century-modern sensibilities with fine textural details, creating a pared-back aesthetic shot through with warmth and luxury.
The owners of the flat, an entrepreneur couple with two children, aged three and seven, wanted to incorporate their existing collection of vintage furniture and make their family home child-friendly without sacrificing on style.
“Mid-century modern is a popular style and when you’re designing this kind of space, it’s difficult not to repeat some elements, but we tried to add something a bit different here, using lines and curves,” says Chen.

While not obvious at first glance, vertical lines have been employed throughout the flat, from corduroy grooves on wardrobe doors and dado panelling to gently striped curtain linens and thin white tiles in the kitchen, placed in upright rows. The subtle effect draws the eye upwards but also adds to a sense of order and refinement.
“I’m obsessed with lines. I want everything to be perfectly aligned – I’m a bit OCD like that,” says Chen, who also describes an ongoing struggle with his love for minimalism. “I love lines and texture and colour but, deep down, I am a minimalist. My clients are minimalists at heart, too, but you have to ask yourself: do you have a minimalist lifestyle? Do you hide your toothbrush every morning? Do you hide your books and magazines the minute you’ve stopped reading them? If not, then it’s not for you.